
Laying the groundwork to celebrate 100 years of your historic Library building in 2031!
The story of Lake Forest Library begins on the second floor of City Hall in 1899. For the next three decades, the community's use of the Library grows, the collection swells to 28,000 books, and the Library expands from a corner of the council chambers to occupy the entire floor of City Hall. But more space is needed.
In response, sisters Helen Shedd Reed Keith and Laura Shedd Schweppe gift a new library building to the City. The building, designed by architect Edwin H. Clark, honors the memory of Helen's first husband, Kersey Coates Reed, and is dedicated on June 7, 1931.
As we approach the centennial of the Library building in 2031, one of our key strategic priorities is to preserve and enhance the building.
By restoring historic spaces and features—including the dome, Remisoff murals, courtyards, and 1931 historic rooms—and thoughtfully considering changing user needs and expectations, the work will improve functioning and universal access, as well as increase flexibility and adaptability for the next 100 years of Lake Forest Library.
Questions
Each phase of the work has involved consultation with stakeholders and experts including the Lake Forest Preservation Foundation, the Friends of Lake Forest Library, and the Lake Forest Garden Club.
The Library Board and administration welcome your questions and comments about the Building Centennial Projects.
1931 Historic Rooms Revitalization
Underway are plans to revitalize and enhance the original 1931 historic rooms design by Edwin H. Clark, including the ...
- Foyer
- Rotunda
- Friends Reading Room
- Reference Room
- Reference Annex
- Furnishings for the courtyards
Patrons can look forward to an improved use of space and meaningful updates that harken back to the art deco design of the time. Your experience in these historic spaces will be enhanced with refreshed and appropriate furniture and lighting, additional outlets, improved access at service desks, a second working fireplace, and the restoration of historic details lost or obscured over the years.
Please subscribe to the Library eNews for updates as we work to reawaken the original elegance of these spaces while accommodating modern library usage and special programming.

Timeline & Work
Revitalization of the 1931 Rooms is expected to begin around May 2026 and continue through late 2026/early 2027. Highlights of the project include:
- New furniture in the Foyer and Friends Reading Room that supports flexible layouts and special events
- Recreation of original Clark-designed features, such ceiling vent covers, chandelier lightshades
- Restoration of the Reference Room fireplace
- Repositioning of service desks, public computers, and print station for improved functioning and access
- New doors in the entry vestibule, the Friends Reading Room, and the Reference Room
In all spaces, you can look forward to:
- Fresh paint and carpet/flooring
- Refinished wood casework
- Period appropriate restored/inspired furniture and window treatments
- Improved lighting, acoustic treatments, and signage
- More functional pathways with better flow between areas
- Additional electrical outlets
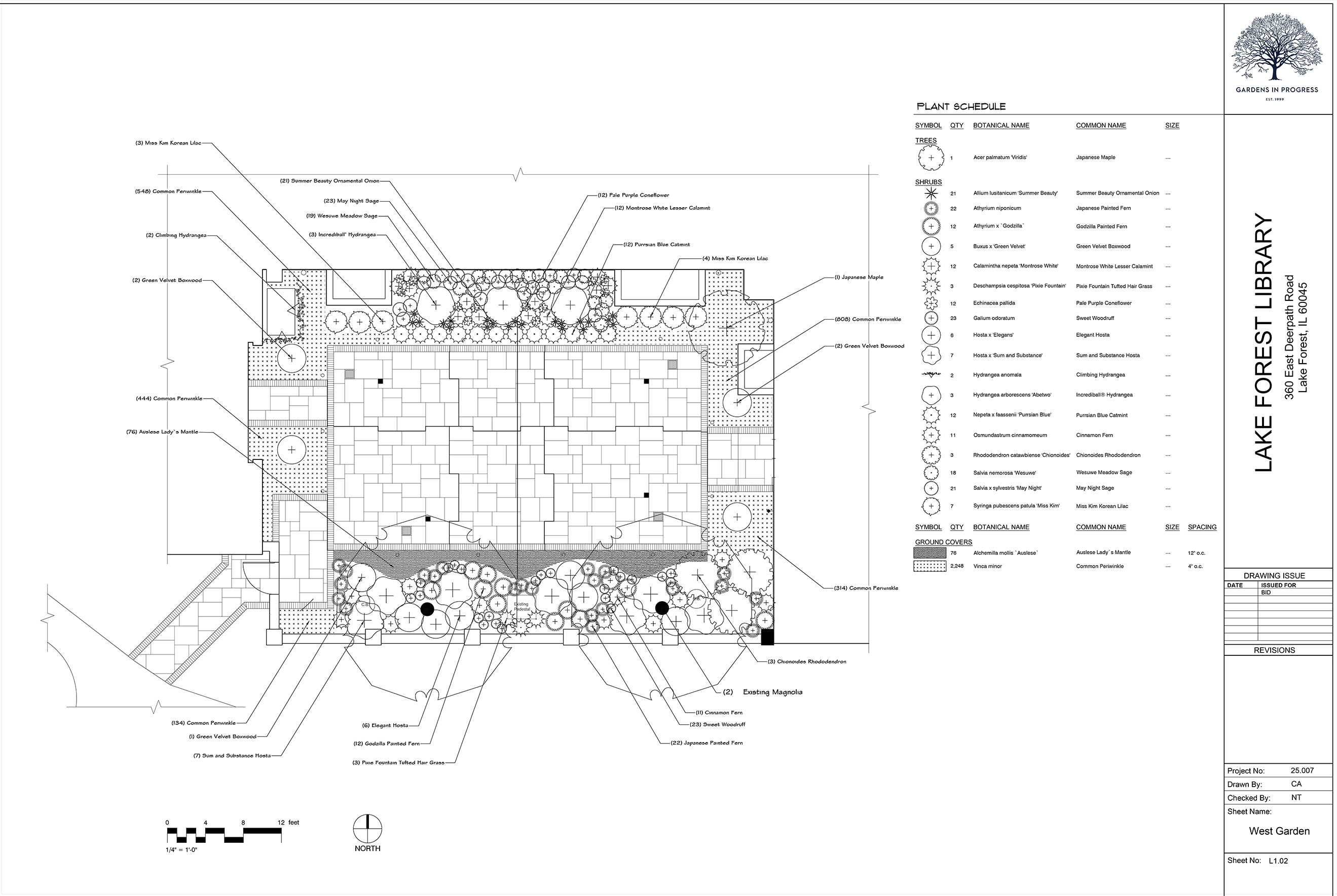
Courtyards Rehabilitation
After decades of exposure to the elements, the masonry walls and pavers of the courtyards were in poor condition. The Courtyards Rehabilitation Project will improve the functionality and accessibility of these exterior spaces, as well as give special consideration to their original historic design.

Timeline & Work
Work on the courtyards is planned to run from late July 2025 into early 2026 and includes ...
- Wall dismantling and brick salvaging
- Excavation and waterproofing
- Drainage system installation
- Electrical installation
- Backfill and bluestone installation
- Tuckpointing and repair of surrounding walls and windows
- New doors into the Foyer
- Wall reconstruction
- Ready for new landscaping in spring 2026
FAQs
While the Library will remain open throughout the duration of the project, public/staff access to the courtyards will be closed beginning July 28 until further notice. The contractor will erect construction fencing and take other precautions to ensure that patrons, staff and vegetation are protected and that access to the Library is maintained at all times.
There may be times when the parking spots nearest to the library entrance are not available for residents to facilitate delivery of construction materials and removal of excavated material. The contractor will also use certain areas on the northeast corner of the Library's parking lot for staging and storage of construction materials. We are in the process of identifying additional parking options for public, staff and contractor use during the project and will update you as soon as we have more information.
Our staff will be happy to deliver materials to you or pick up materials from your car. Please call our Circulation Desk at 847-234-0636 and let staff know you are in the parking lot for curbside service. They will ask for your library card number if you are picking up library materials. Library staff will checkout your materials to you and bring them to you in your vehicle. They can also take any materials you wish to return at that time.
No scheduled programs will be canceled due to the courtyards rehabilitation. Some outdoor programs typically held in courtyards may be relocated indoors or offsite. Updates will be provided on the Library's website and event calendar.
There may be periods of noise or vibration during certain phases of the project, particularly during demolition or masonry work. Work will take place before and during normal business hours, and every effort will be made to minimize noise and disruption inside the Library.
Yes, the Historic Preservation Commission approved the Library's courtyards project at its meeting on May 28, 2025. For additional information and drawings of the original proposal, please see pages 13-89 in the May 28, 2025 Historic Preservation Commission Packet.
The lead contractor is Berglund Construction and the architects are Wiss, Janney, Elstner Associates, Inc. (WJE). Both firms have significant experience in working with historic structures and also have extensive knowledge of the building and the Library's operations gained during their earlier work on the Dome Restoration project. The landscape will be designed by Gardens in Progress who have worked extensively on gardens design & project management in the North Shore of Chicago for over two decades.
Several of the perennial plantings have already been replanted within the grounds of the Library in our efforts to preserve the existing landscape. Some of the established trees will be preserved while some others will have to be removed to facilitate the construction work. We are working with Gardens in Progress to present an attractive landscaping plan for the courtyards.
The Library will use its reserves and private contributions to fund the Courtyards Rehabilitation Project. Interested organizations and residents wishing to contribute to the project may contact the Library's Executive Director.
Phase 3 is to look to the future. How can existing spaces be reconsidered in light of modern library operations and changing community need? Spaces in the scope of this work, include:
- Enhanced ADA accessibility
- Additional parking
- Reimagining the Children's Library, Kasian Room, and Media Lab
- Program/Event space
- Group study rooms
- Meeting rooms
- Improved staff workspaces
- Redesigned landscaping
- Future growth of collections and services
Dome

In 2017, unusual buckling on one of the historic 1931 Nicolai Remisoff mural panels that line the Library's rotunda triggered an inspection of the Library's dome, which was found to be leaking. Later that year, the dome was tarped to prevent further damage to the Remisoff murals and interior Rotunda.
In 2023, restoration of the dome moved forward. The architecture firm Wiss, Janney, Elstner Associates, Inc. and contractor L. Marshall Roofing & Sheet Metal completed the work in August.
Murals

With the dome restored, attention could turn to the interior. The Poets and Writers of Antiquity are eight murals (plus four small landscapes) that adorn the Rotunda walls. They were painted by Russian emigré Nicolai Remisoff.
In early spring of 2024, Parma Conservation spent several weeks restoring the murals. Using chemistry, microscopy, and UV, infrared, and X-ray imaging, they identified how best to restore each panel. Flaking paint was consolidated (saved) and pinpoint losses, cracks, and other imperfections were filled in. Everything was cleaned and varnished.

